
tutum
TH CONNECT70
Designed for those who seek a harmonious retreat, the TutumHOUSE Retreat blends modern design with eco-conscious materials to create a peaceful and functional living space. Its compact yet spacious layout ensures comfort and practicality, while large openings seamlessly connect the interior with nature. Built with durability and energy efficiency in mind, is an ideal getaway home, offering a perfect balance between relaxation and sustainability.


DETAILS
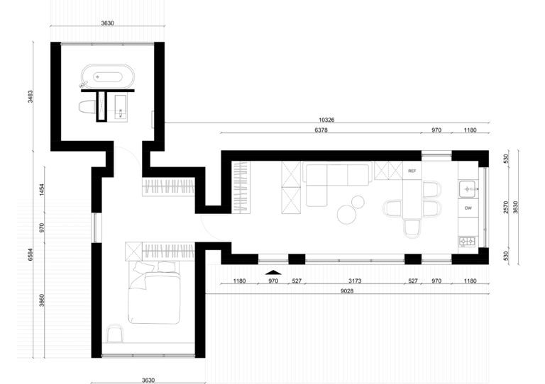
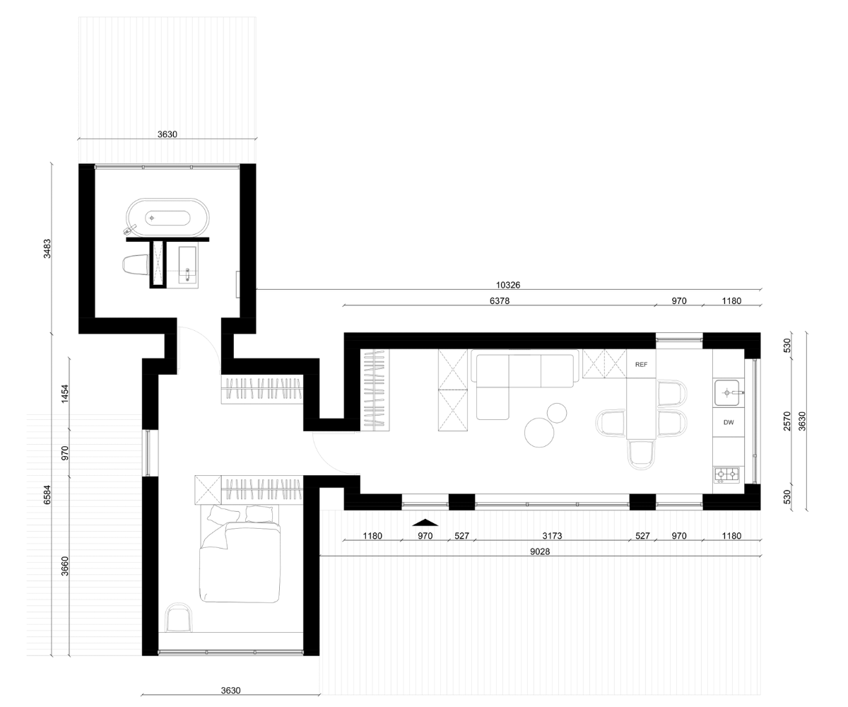
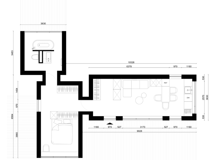
TH CONNECT70
Built-up Area: 70 m²


Nature-Inspired Comfort & Sustainability

Your HOME, Your CHOICE – WOOD or STEEL Frame for Ultimate Comfort
With tutumHOUSE, you have the freedom to choose the structure of your home – a steel frame for exceptional strength and stability or a wooden frame for traditional craftsmanship and versatility. Unlike most options on the market, our steel frame construction stands out with its superior durability and extra-thick insulated walls, ensuring maximum energy efficiency and year-round comfort.




Wooden Frame
A traditional, natural solution, offering flexibility and lightweight construction.
Steel Frame
An innovative choice, providing superior structural stability and enhanced insulation.


Frame Structure and Insulation – Your Choice
At tutumHOUSE, you have the freedom to choose the structure of your home – a wooden or steel frame, each designed for maximum quality, energy efficiency, and durability

CUSTOMIZATION
tutum
TH CONNECT70
Accessible on desktop version only.

Sustainable Materials & Custom Finishes
Your home, your choice – built to last and designed for your lifestyle.


FACADE MATERIALS
A Self-Protecting & Ever-Evolving Material
Exclusive, Durable, and Timeless
Corten® is a registered trademark of United States Steel Corporation (1930) and one of the most durable architectural metals available. It naturally forms a protective oxide layer (patina) when exposed to changing weather conditions, preventing further corrosion. Over time, this self-healing process stabilizes, eliminating the need for painting, coating, or maintenance. Each panel develops a unique, natural tone, making Corten® an ideal long-term facade and roofing solution.
At tutumHOUSE, we are the only modular home manufacturer integrating Corten® steel for both facades and roofs. Our customized folding techniques ensure a seamless, high-end finish that requires advanced engineering expertise.


Thermo Wood
Durable & Sustainable Facade Solution
Thermo Wood is an eco-friendly, long-lasting, and stable material, treated using only heat, steam, and water—without any chemicals, resins, or formaldehydes. This natural modification process significantly enhances resistance to temperature and moisture fluctuations, making it an ideal choice for exterior cladding in any climate.
One of the key advantages of Thermo Wood is its dimensional stability—it is far less prone to warping, swelling, or shrinking compared to untreated wood. Additionally, it boasts improved thermal insulation properties, contributing to better energy efficiency in homes.
Aesthetically, Thermo Wood features a warm caramel tone, which gracefully weathers into a silver-gray patina over time when exposed to natural elements. While we recommend keeping it unoiled to allow for natural aging, we also offer pre-oiled options in various shades, providing clients with the freedom to choose the desired color for their facade.
Thermo Wood’s UV resistance ensures its long-term appearance, reducing the need for maintenance. Its durability, natural elegance, and improved insulation make it a premium choice for sustainable and visually appealing home exteriors.
At tutumHOUSE, we prioritize high-quality, sustainable materials that ensure durability and timeless aesthetics. Every home is crafted with precision, using certified and eco-friendly materials. Additionally, you have the freedom to customize finishes, choose from various color palettes, and adjust facade and interior combinations to match your vision.
Corten® Steel
Why Choose Corten® Steel?
Self-protecting & maintenance-free – Naturally resists corrosion, requiring no coatings or repainting.
Exclusive to tutumHOUSE – Precision-engineered folding techniques ensure a premium, seamless design.
Architectural statement – A unique industrial yet natural aesthetic that evolves over time.
Enhanced durability – Withstands extreme climates while maintaining structural integrity.
Superior comfort – Unlike standard metal roofing, our 1mm Corten® steel eliminates rain drumming noise
Tested to meet EN 100255:2004 standards, Corten® is more than just a material—it is a sustainable, premium choicefor modular architecture.








Burnt Wood
Shou Sugi Ban – Durable & Distinctive Facade Solution
What is Burnt Wood?
Shou Sugi Ban, or burnt wood, is a centuries-old Japanese technique that chars the wood surface to enhance its durability, weather resistance, and unique aesthetics.
Why Choose Burnt Wood?
Superior Protection – The carbonized layer naturally resists moisture, rot, pests, and UV rays, ensuring longevity.
Fire Resistance – Charring creates a protective barrier, improving fire resistance compared to untreated wood.
Low Maintenance – No need for frequent upkeep—its natural finish withstands environmental wear.
Sustainable Choice – A chemical-free, eco-friendly material, fully recyclable and biodegradable.
Customization Options
Available in different burn intensities and finishes, burnt wood offers versatile design possibilities for modern and traditional facades.
A premium, long-lasting facade solution with striking aesthetics and unmatched durability.








Windows & Doors
Performance & Customization
Why Choose Our Windows & Doors?
Superior Insulation – Double-glazed, single-chamber glass ensures energy efficiency and sound insulation.
Material Options – Choose between PVC for affordability and thermal efficiency or aluminum for sleek design, durability, and enhanced strength.
Seamless Integration – Windows and doors are designed to blend harmoniously with the facade, ensuring modern aesthetics and functional performance
Weather Resistance – High-quality materials offer long-lasting durability and protection against environmental conditions.
Customization Options
Clients can select frame colors, glass coatings, and opening mechanisms, tailoring their windows and doors to fit their design vision.
A perfect balance of durability, insulation, and aesthetics, ensuring long-term performance and comfort.








Flooring
INTERIOR MATERIALS
Durability & Aesthetic Comfort
Why Choose Our Flooring?
Vinyl Flooring – Resilient & Stylish
Our high-quality vinyl flooring is designed for durability, water resistance, and easy maintenance. It provides a warm, natural wood-like appearance while being scratch-resistant and highly resilient, making it ideal for high-traffic areas.
Seamless & Comfortable Surface
The flooring ensures a smooth, seamless finish, enhancing comfort underfoot while offering excellent thermal insulation for a cozy indoor experience.
Water & Stain Resistance
Unlike traditional wood flooring, vinyl is highly resistant to moisture and stains, making it ideal for kitchens, bathrooms, and living space
Customization & Design Options
Clients can choose from a variety of colors, textures, and patterns, ensuring that the flooring perfectly complements the interior aesthetic of their home.










Walls and Ceilings
Interior Plywood – Durability & Natural Aesthetics for Walls and Ceilings
What is Interior Plywood?
Interior plywood is a high-quality, multi-layered wood panel designed specifically for walls and ceilings. It offers structural stability, resistance to deformation, and a warm, natural aesthetic, making it ideal for modern, minimalist, or wood-accented interiors.
Key Benefits:
Dimensional Stability – Resistant to warping, cracking, and temperature changes.
Natural Warmth – Showcases a rich wood texture that enhances interior spaces.
Eco-Friendly & Safe – Free from harmful chemicals, ensuring a healthy indoor environment.
Low Maintenance – Can be oiled with a tinted finish for added protection and easy cleaning.
Customization Options
Interior plywood is available in its natural tone or can be treated with pigmented oil for color customization, allowing seamless integration into any design.
A durable and visually appealing solution, interior plywood provides both style and longevity for high-quality wall and ceiling finishes.






Walls and Ceilings
Wood Veneer Panels – Elegant & Durable Interior Finishes
What is Wood Veneer?
Wood veneer panels are a premium interior finishing material that combines the natural beauty of wood with enhanced durability. Their multi-layered composition creates a distinct textured appearance, offering a refined and three-dimensional effect on walls.
Key Benefits:
Enhanced Durability – Resistant to wear, scratches, and everyday impact.
Rich Texture & Depth – Layered surface creates a natural, sophisticated aesthetic.
Low Maintenance – Easy to clean and maintain, retaining its premium look over time.
Sustainable Choice – Uses less solid wood while maintaining an authentic natural finish.
A stylish and practical solution, wood veneer panels bring warmth and elegance to modern interior spaces, ensuring long-lasting beauty with minimal upkeep.






Bathroom
PREMIUM ITALIAN STONEWARE TILES – ELEGANCE & FUNCTIONALITY
Our Italian stoneware tiles offer a high-end, durable finish for both interior and exterior applications. We use the Eterna Collection by Ragno, known for its natural stone aesthetics combined with modern performance.
Key Features:
High Durability & Longevity – Resistant to scratches, stains, and impacts, ensuring lasting quality.
Moisture & Heat Resistant – Perfect for shower walls, bathroom floors, and sanitary zones, performing exceptionally in high-humidity environments.
Minimal Maintenance – Non-porous surface repels dirt and requires minimal upkeep.
Timeless Aesthetic – The textured stone finish adds a sophisticated and natural touch to interiors.
Used in shower walls, bathroom floors, and sanitary areas, these tiles provide seamless, elegant, and long-lasting surfaces for modern homes.



OTHER SIZES
tutum
RETREAT
FIND
APPLICATIONS
Relax, rejuvenate, and reconnect with yourself at the tutumSPA. Take a seat back to back against the nature in your remote spa or sauna. Get your personal oasis, designed to refresh both the body and spirit.
tutum
SPA
NEW
Experience the ultimate escape with remote living in tutumLIVING. Designed with tranquility in mind, our houses combine essential comforts with the beauty of nature, making it your perfect secluded sanctuary.
LIVING
tutum




TOUCH
GET IN
Start by filling up inquiry form. Next step is to schedule an online meeting with us when we will dive into understanding your desires, needs, and vision for your remote house.
Together, we will craft the design and make sure it resonates with both your practical necessities and style preferences.
Let's collaborate and turn your dream into reality.
Ready to shape your dream Tutum House?












